Consulting Engineering Services
In Rexford Consulting Engineering, PLLC, we provide structural engineering design and inspection services for residential and commercial buildings throughout New York State.
Our services include, but are not limited to, custom structural designs for new buildings, boat docks, residential decks, sunrooms, additions, garages, renovations, and more, as well as structural inspections for real estate transactions, assessing insurance claims, damage assessments, and code compliance.
We also provide sealed permit drawings for the town's review and approvals. Our expertise also includes machine foundations, slab-on-grade designs for manufacturing facilities, and structural evaluations to support new equipment loads such as HVAC systems.
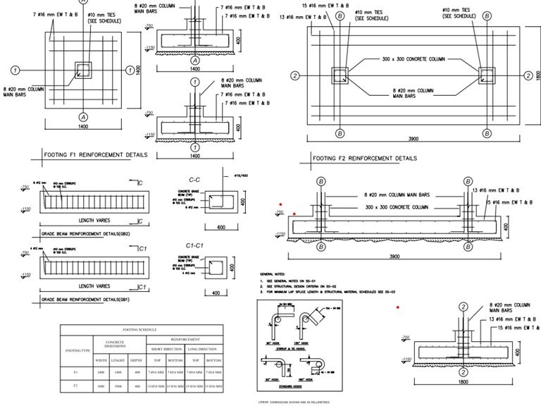
We specialize in foundation design for pre-engineered metal buildings and provide sealed designs for smaller structures, such as signboards, streetlight poles, flag poles, and other freestanding structures.
Our Service to You
At Rexford Consulting Engineering PLLC, we provide a wide range of structural engineering solutions tailored to meet the needs of residential, commercial, and industrial projects.
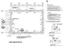
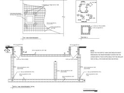
Structural Design of Buildings
We deliver safe, efficient, and code-compliant structural designs for concrete, steel, masonry, and wood buildings of all sizes.
Consultation Services
Our team offers expert consultation for remodeling, renovations, and structural modifications, ensuring your project is both practical and structurally sound.
Foundation Design
We specialize in foundation systems for pre-engineered metal buildings, ensuring stability, durability, and cost-effectiveness from the ground up.
Foundation Design of Special Structures
Our expertise includes the design of foundations for specialized structures like water reservoirs, heavy machinery, flag poles, streetlights, signboards, and more.
Detailing & Drafting Services
RCE provides precise steel construction detailing and professional drafting services to support contractors, architects, and project managers throughout the building process.
Temporary Structures Design
We design scaffolding, shoring systems, and formwork for concrete structures, combining safety with engineering excellence for reliable temporary support.
Delivering Proven Structural Engineering Expertise
- Structural design of buildings
- Review and sealing of structural drawings and calculations
- Offer Consultation services for remodeling or structural modifications
- Foundation design for pre-engineered metal buildings
- Steel construction detailing
- Drafting services
- Scaffolding and shoring system design
- Formwork design for concrete structures
- Assessing buildings for realters and mortgage providers
- Loss assessment for insurance companies after fire, storm, and other disasters
- Assessing buildings for code compliance and FHA Certification
Drafting and Computerizing
of Drawings
At RCE, we offer advanced Building Information Modeling (BIM) services for residential and commercial buildings, using industry-leading software such as AutoCAD and Revit.
We also assist building owners in converting their existing paper drawings into accurate digital formats using CAD or Revit. Digitalized plans simplify future development, maintenance, and remodeling. Electronic records are simpler to store, update, and share when needed.
We Help Insurance Companies
We help insurance companies assess the loss and damage to properties resulting from hurricanes, fires, or other disasters and accidents.
We help Realtor and Money Lander
We assist money lenders, realtors, and bankers in assessing and evaluating properties before deals to ensure they are safe and comply with current local building codes.
We assist construction companies through drafting services, including as-built and red-line drawings, both during and after construction. We provide special inspection of concrete, steel, wood, and masonry structures.
